![]() |
Dossier technique et plans |

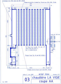
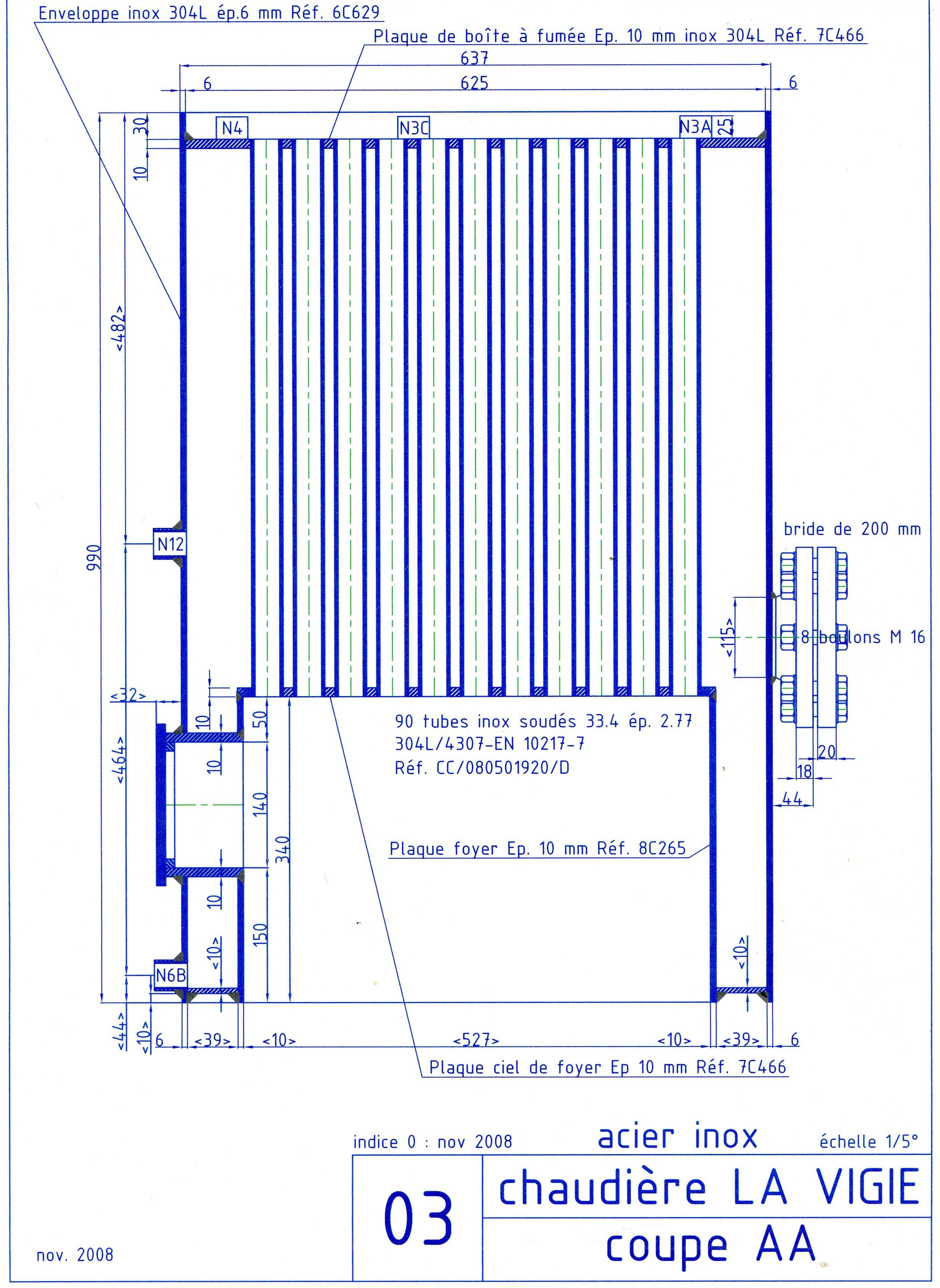
L'implantation des tubes et les
piquages de prise de vapeur, manomètre, soupapes (2) sifflet et souffleur.

Implantation des accessoires sur les piquages vapeur :N13 prise de vapeur, N14
souffleur, N3A soupape 1, N3C soupape 2, N4 sifflet, N3b manomètre.
Le gueulard est légèrement à gauche en face du chauffeur.

La boîte à fumée et base de la cheminée (réutilisable)

Le foyer a une hauteur de 464 mm. la plaque foyère a un diamètre de 547 mm.,
épaisseur 10 mm.
La lame d'eau (entre la virole et le foyer) est de 39 mm.

Les piquages de niveau, gauche N1B, N2B, droite N1A, n2A, introduction d'eau
N12, vidange N6B, introduction d'eau pompe de secours en bas à droite du
gueulard.

Le support de la chaudière et du plan de grille est une couronne qui relie la
chaudière au cendrier. Le cendrier est fixé sur une carlinguage. Les cendres
tombent dans un cendrier qui contient 20 litres d'eau

Le cendrier a deux trappes pour l'air, une petite côté machine et une plus
grande vers l'avant du bateau. Il contient entre 20 et 30 litres d'eau. Il est
fixé aux carlingues qui supportent aussi la machine.

Crinoline de protection en acajou et couvercle de boîte à fumée en laiton
repoussé.
Si une image de cette page vous paraissait non libre de droits, merci de m'en faire part